Growth along N.C. 211 and Sunset Harbor Road is accelerating as new housing and commercial projects reshape the approach into the historic harbor community.
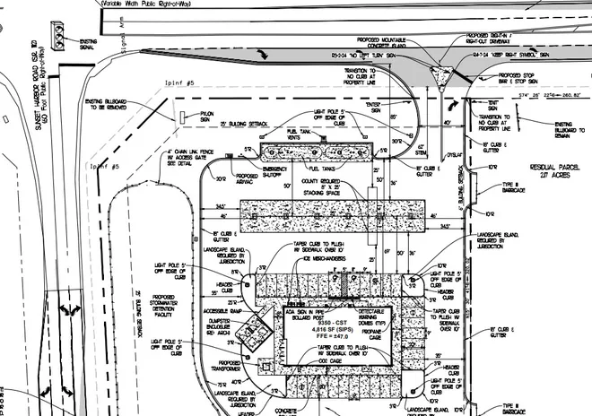
Bolivia, NC — A new 7‑Eleven convenience store and gas station is planned for 2128 Timber Oak Lane SE, just off Sunset Harbor Road along the N.C. 211 corridor. The site sits adjacent to an existing Han-Dee Hugo / Subway, adding another commercial project to an area already undergoing rapid residential growth. According to development filings, the store will follow 7‑Eleven’s standard convenience‑store format, offering typical gas‑station hot foods such as roller‑grill items, grab‑and‑go sandwiches, pizza slices, and a coffee and beverage bar. Plans do not include a restaurant, staffed hot bar, made‑to‑order kitchen, or any dine‑in seating.

Within the last five years or so, the corridor has transformed with the addition of Bella Point, a multi‑phase subdivision that now includes more than 100 single‑family homes, with additional homes under construction and more phases planned. Farther down Sunset Harbor Road, new clearing north of River Run Plantation marks the start of another planned residential section, expected to include future homes or townhomes as the area continues to fill in.
For longtime residents of Sunset Harbor, the historic fishing community that hugs the Intracoastal Waterway, the pace of change just up the road has become a growing concern. What was once a quiet, wooded egress and ingress has now become a line of new rooftops, cleared tracts, and the proposed 7‑Eleven at the corner of Sunset Habor Road and 211. Many say the character of the harbor, known for its slower rhythm is being increasingly overshadowed by the scale of new developments.
This proposed 7‑Eleven is adding a second fuel option for travelers and a few more job openings for locals – near the existing BP station and increase commercial activity at one of the corridor’s growing junctions. Development filings reference the project, though construction timelines have not yet been released.
As residential and commercial growth continues to converge at Sunset Harbor Road, the 211 corridor is expected to remain a focal point for both new investment and community debate.
©2026 bcdollarsaver.com. All rights reserved.

Be the first to comment